House in Haz-Zebbug - view 1
1/5

House in Haz-Zebbug

Haz-Zebbug, Republic of Malta
€715,000
£623,920
3
Bedrooms
3
Bathrooms
146
Build size
209
Plot size

Description

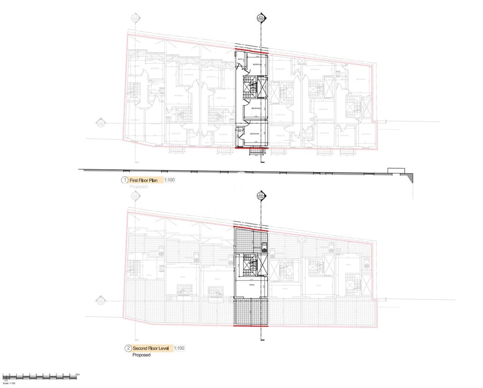
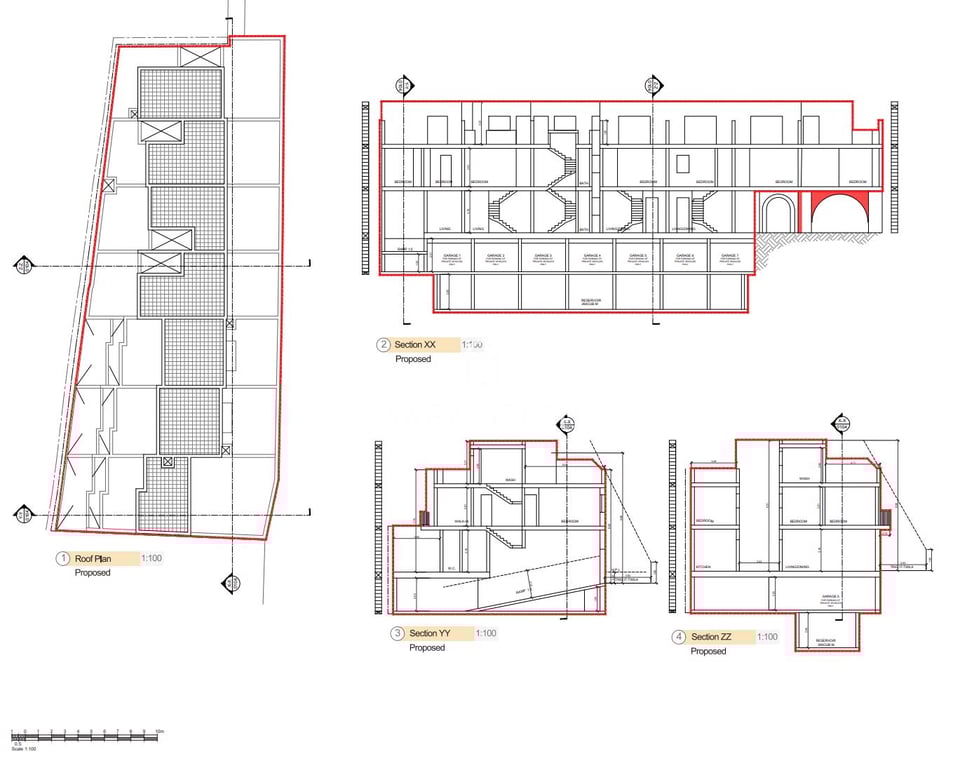
A rare for sale property in the UCA area Zebbug: a 3 bedroom, 3 bathroom Terraced House offering traditional architecture and excellent potential. Presented in Shell, the residence provides a generous 146SQ M internal area with an additional 79SQ M external area, giving a 209SQ M total area to configure to your needs. Set over multiple levels, this home is an ideal project for those seeking to retain character while introducing contemporary comforts. The roof terrace boasts Potential for pool on...

Ref #1185376

Location

This property is located in Haz-Zebbug, Republic of Malta, one of the most desirable neighbourhoods in the area.

Loading Map...

Property Enquiry

Planning a viewing trip?

By submitting this enquiry you agree to be connected with the property agent for more detail on this listing.
We handle your data with care and only ever as outlined in our Privacy Policy

Similar Properties

Loading similar properties...