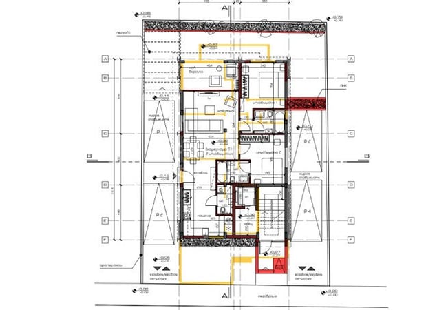
This excellent plot, located in the sought-after Petrou & Pavlou area, offers a prime opportunity for real estate development. With a plot size of 300m2 and a total covered area of 430m2, this property comes with approved architectural plans for a mixed-use residential project. Key Features: Plot Size: 300m2 Density: 120% (360m2) Density with Incentives: 374m2 Covered Verandas: 56m2 Total Covered Area: 430m2 Energy Efficiency Cert.: 5% Zoning: Ka4 (Residential) Coverage: 50% Building Allowance: 3 Floors, 13.5m Height The architectural plans for the site allow for the construction of a contemporary building consisting of: 3 x 2-Bedroom Apartments (One apartment per floor) 1 x 2-Bedroom Penthouse This is a fantastic opportunity for developers or investors looking to create high-quality residential units in a central and highly desirable location. Location: Situated just a short distance from a wealth of local amenities, including banks, shops, bakeries, pharmacies, and supermarkets, this plot is ideal for those looking for convenience and accessibility. Plus, with easy access to the center of Limassol and the iconic Limassol Marina, this property offers excellent potential for rental income or long-term capital growth. 1. What is the zoning of the plot? The plot is zoned as Ka4 (Residential), which allows for the construction of residential buildings, including apartments and penthouses. 2. What are the building allowances? The plot has a building density of 120%, meaning up to 360m2 of construction can be built without incentives. With incentives, the allowable construction increases to 374m2. Additionally, the plot has a coverage allowance of 50%, allowing for a substantial footprint for the building. The site also permits 3 floors and a maximum height of 13.5 meters. 3. Is the plot serviced? Yes, the plot is serviced with all necessary utilities including water, electricity, and access roads. 4. Are there any additional costs or taxes to consider? As with any real estate transaction, buyers should be aware of transfer fees, stamp duty, and other related taxes. A consultation with a local real estate lawyer or agent is recommended to clarify all fees. 5. What are the nearby amenities? The plot is within close proximity to shops, restaurants, banks, supermarkets, and pharmacies. It is also only a short drive from Limassol Marina and the city center. 6. How long does the development process take? Depending on the scope and speed of construction, the project can typically take 12-18 months to complete, from permits to final build. 7. Can I modify the architectural plans? Modifications to the approved plans may be possible but would need to be approved by local authorities. If you're interested in this exciting opportunity to develop a high-demand residential project in one of Limassol’s most convenient and desirable areas, contact us today to learn more or arrange a viewing.