
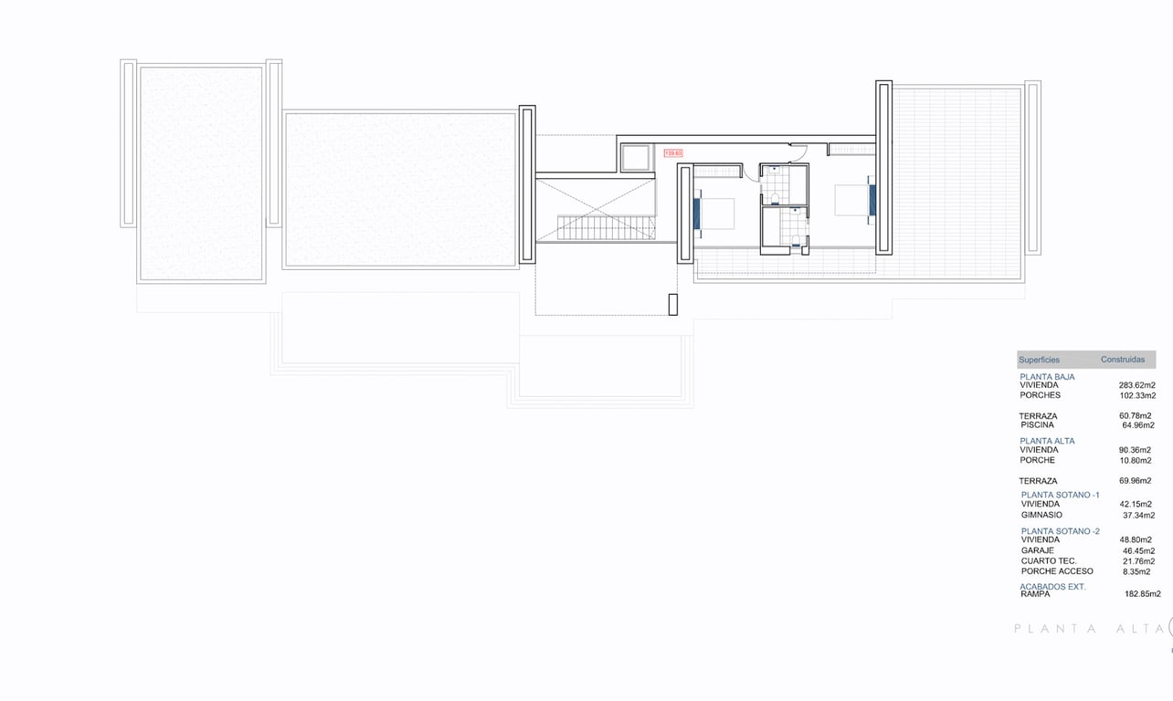
Luxury villa for sale in Benimeit area in Moraira. This high quality villa has 4 floors which are connected with an elevator and an internal staircase. The main floor has a spacious openplan livingdining roomkitchen. The kitchen is fully equipped and has an island for cooking. Sliding doors at ceiling height give direct access to several terraces. In addition there are 3 double bedrooms, all with their own bathroom and a guest toilet. One level up there are 2 more double bedrooms. Each with an e...
Ref #1011472
This property is located in Moraira, Teulada, one of the most desirable neighbourhoods in the area.