
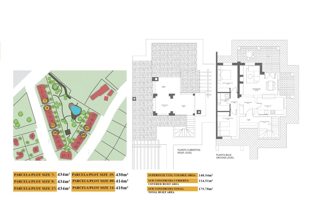
Residential of townhouses, independent and semi-detached villas in Fuente Álamo, Murcia.There are seven different models of houses to choose from, designed to suit everyone’s taste. Rustic designs combined with top quality materials and a focus on comfortable living space there is something for everyone.The residents of this private community of beautiful, spacious homes will also be able to enjoy their own communal gardens and swimming pools.This unusual design semi-detached villa has two bedro...
Ref #1037661
This property is located in Las Palas, Murcia, one of the most desirable neighbourhoods in the area.