Villa in Benissa - view 1
1/19

Villa in Benissa

Benissa, Alicante
€1,495,000
£1,294,092
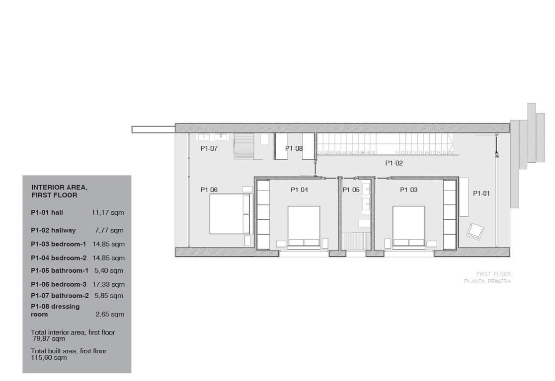
3
Bedrooms
3
Bathrooms
193
Build size
1350
Plot size

Description

Modern Villa Project in Benissa Costa - Only 5 Minutes from La Fustera Beach

Ref #920372

Features

Air Conditioning
New Build
Terrace
Heating

Location

This property is located in Benissa, Alicante, one of the most desirable neighbourhoods in the area.

Loading Map...

Property Enquiry

Planning a viewing trip?

By submitting this enquiry you agree to be connected with the property agent for more detail on this listing.
We handle your data with care and only ever as outlined in our Privacy Policy

Similar Properties

Loading similar properties...
Villa in Benissa | Benissa, Alicante | Your Overseas Spain