Villa in Aduanas - view 1
1/4

Villa in Aduanas

Aduanas, Valencia
€1,450,000
£1,264,906
3
Bedrooms
2
Bathrooms
Pool
Swimming Pool
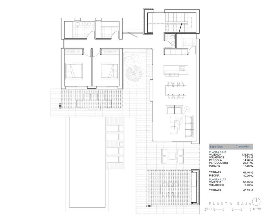
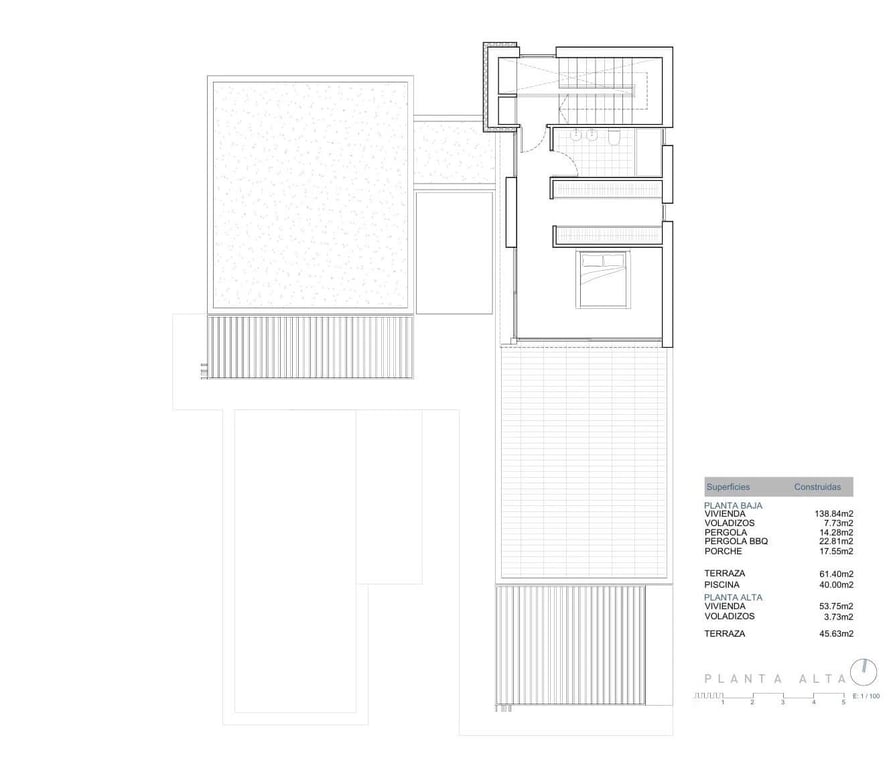
210
Build size
1000
Plot size

Description

Exclusive Mediterranean Living in JaveaDiscover this amazing contemporary villa located in one of the most sought after and peaceful areas of Javea, just 800 meters from the sea. Nestled between pine trees and very near to the famous Cala de la Barraca and Cala del Portixol, this residence offers a privileged lifestyle surrounded by nature and coastal beauty. Javea, situated on the Costa Blanca between Alicante and Valencia, is known for its crystal clear waters, charming old town and year round...

Ref #1064572

Features

Garden
Parking
Pool

Location

This property is located in Aduanas, Valencia, one of the most desirable neighbourhoods in the area.

Loading Map...

Property Enquiry

Planning a viewing trip?

By submitting this enquiry you agree to be connected with the property agent for more detail on this listing.
We handle your data with care and only ever as outlined in our Privacy Policy

Similar Properties

Loading similar properties...
Villa in Aduanas | Aduanas, Valencia | Your Overseas Spain