
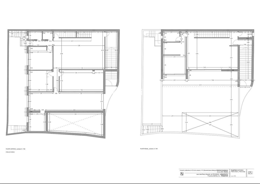
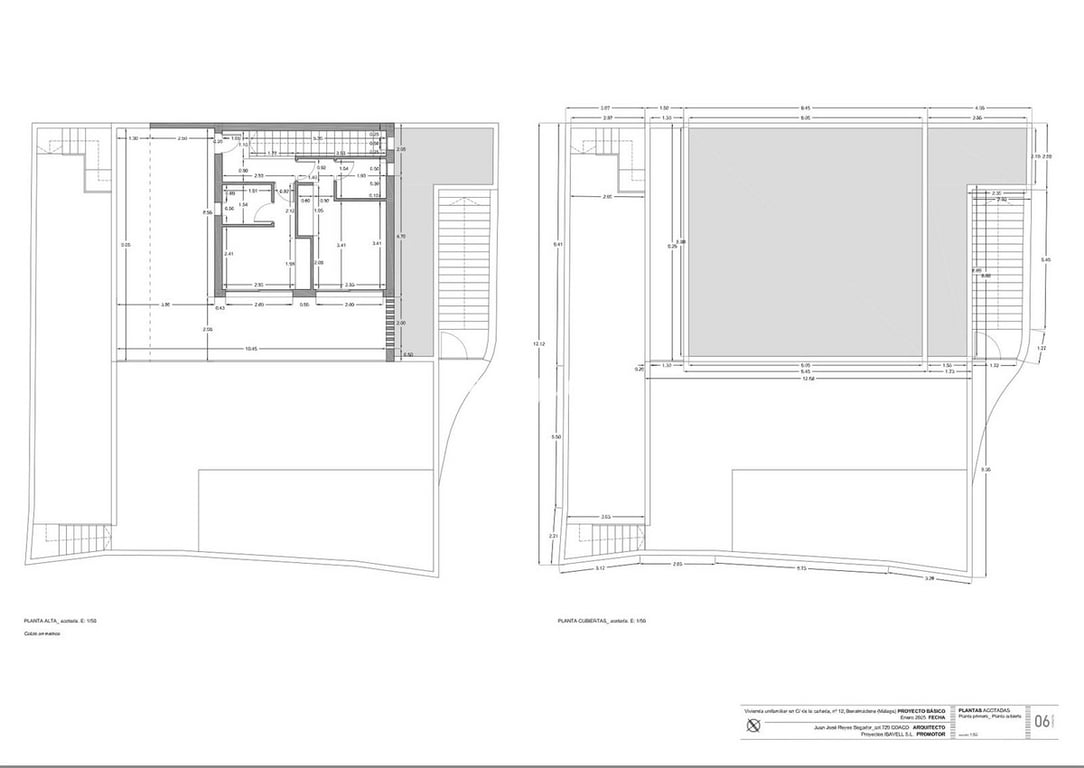
Building plot with project in Rancho Domingo, Benalmádena Pueblo. Very attractive location on a corner plot at the end of a dead end street close to the village with all kinds of amenities. The project which is ready for the building license consists of a detached villa with private swimming pool and garage. It is developed to have basement, ground floor and first floor, with a garage for two vehicles and a swimming pool. It has been oriented so that the main views are directed to the points wh...
Ref #1119901
This property is located in Benalmadena, Costa del Sol, one of the most desirable neighbourhoods in the area.