
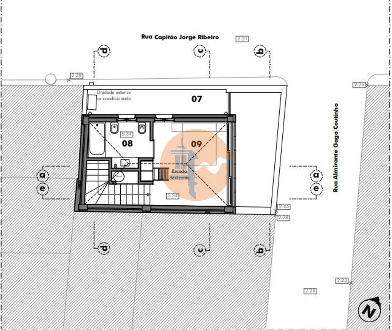
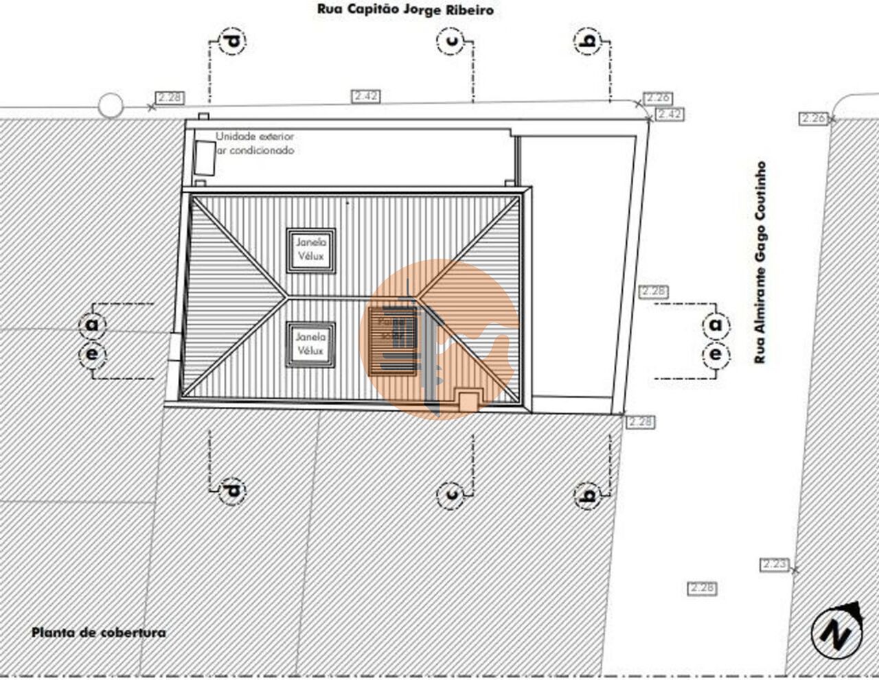
Plot of land with approved project for a 1-bedroom house in Santa Luzia, just 50 meters from the seafront. This 61.74sqm plot of land has a construction area of approximately 90sqm. The license is pending payment. The project envisages the construction of a 1-bedroom house with two floors. On the ground floor there is an open-plan living room and kitchen, a guest bathroom and a patio. On the first floor there is an en-suite bedroom. Located in the fishing village of Santa Luzia, where you ...
Ref #895836
This property is located in Santa Luzia, Azores, one of the most desirable neighbourhoods in the area.