
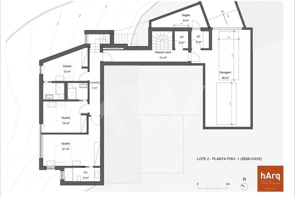
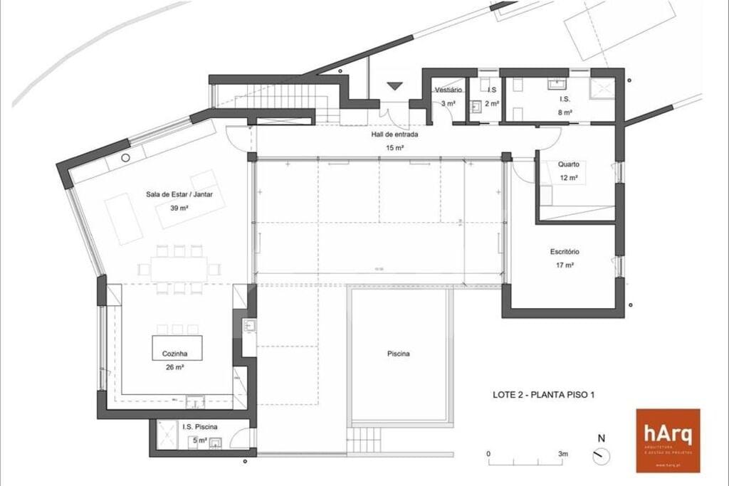
Urban plot with a total area of 1,150m2 and approved project located in the Falésia Dourada Urbanization in Montinhos de Burgau, Luz. The architectural project envisages the construction of a T4 single-family house with three floors. Floors 1 and -1 have a total construction area of 266m2 and are featuring: - Entrance hall - Common room with open kitchen - 4 en-suite bedrooms - Desk - Service WC - Garage Outside there are several terraces, an outdoor swimming pool and garden. Floor -2 has a ...
Ref #774772
This property is located in Senhora da Luz, Faro, one of the most desirable neighbourhoods in the area.