
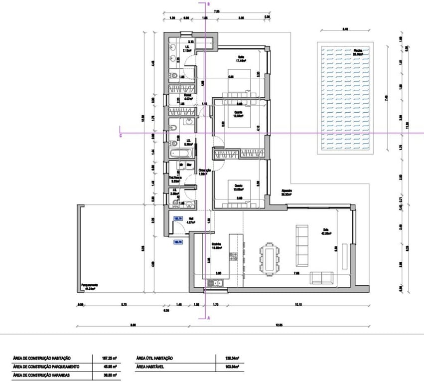
Exclusive 3,256 m2 Plot with Approved Project – Minutes from Rio Maior An exceptional opportunity to build in one of the most peaceful and naturally beautiful areas near Rio Maior. This 3,256 m2 plot comes with an approved project, offering the ideal balance between privacy, nature, and strategic location. With outstanding solar exposure (east–west), the property enjoys sunlight all day long, perfect for energy efficiency, outdoor living, and premium architectural design. Prime Location 5 mi...
Ref #1088347
This property is located in Rio Maior, Santarem District, one of the most desirable neighbourhoods in the area.