
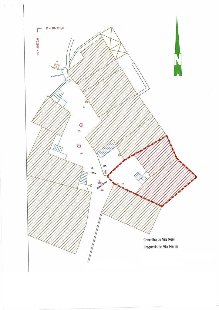
Ruin / House to Rebuild in Vila Marim – Vila Real, the ideal starting point for a soulful project, whether for your own home, rural tourism, or an inspiring second home. Unleash Your Creativity and Build Your Future: Property Features: • Total Land Area: 120 m2 • Floor Area: 90 m2 • Gross Building Area: 176 m2 Advantages that Make a Difference: • Tranquility and Nature: Located in a quiet area, surrounded by natural beauty, it is the ideal place for those seeking peace and quality of life. ...
Ref #1165971
This property is located in Vila Marim, Vila Real District, one of the most desirable neighbourhoods in the area.