
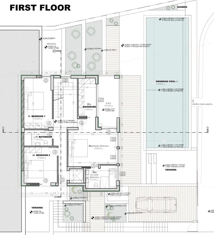
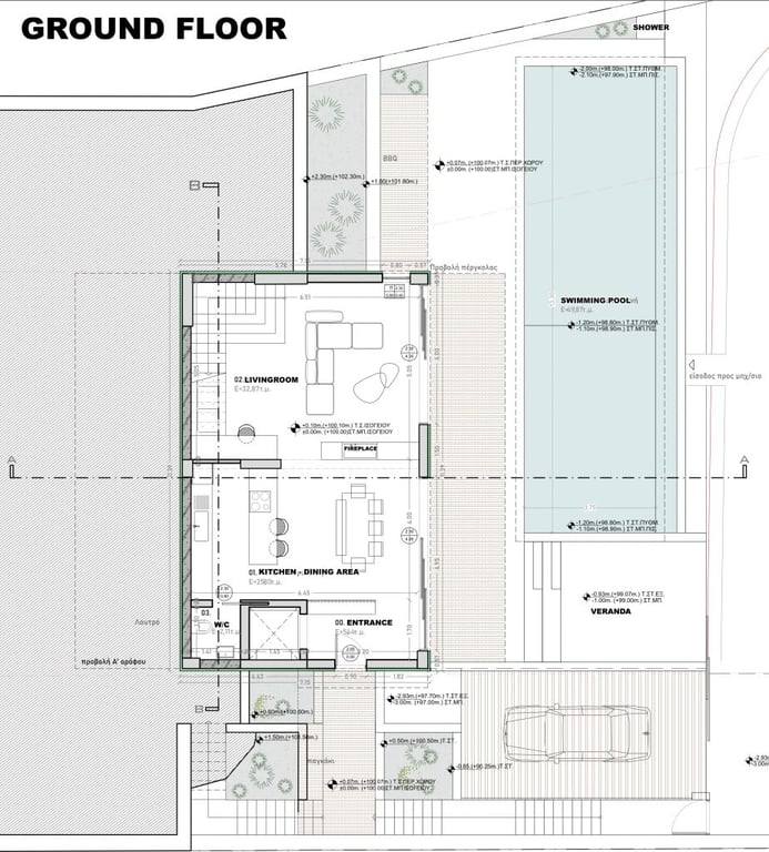
This building land of 2665 sq. meters lies on the sea facing hill slopes of Elounda, right at the side of the main road that connects the capital of Lasithi Agios Nikolaos with the elite tourist resort Elounda. From its elevated position, the land enjoys breathtaking panoramic views of both the Elounda Bay and the Mirabello Bay, the 5/6-star luxury resorts, the mountains and beautiful sunrises. It already has a building license for a large luxurious two-floor villa 213.25 m2 + a basement of 41...
Ref #1073275
This property is located in Agios Nikolaos, Lasithi, one of the most desirable neighbourhoods in the area.