
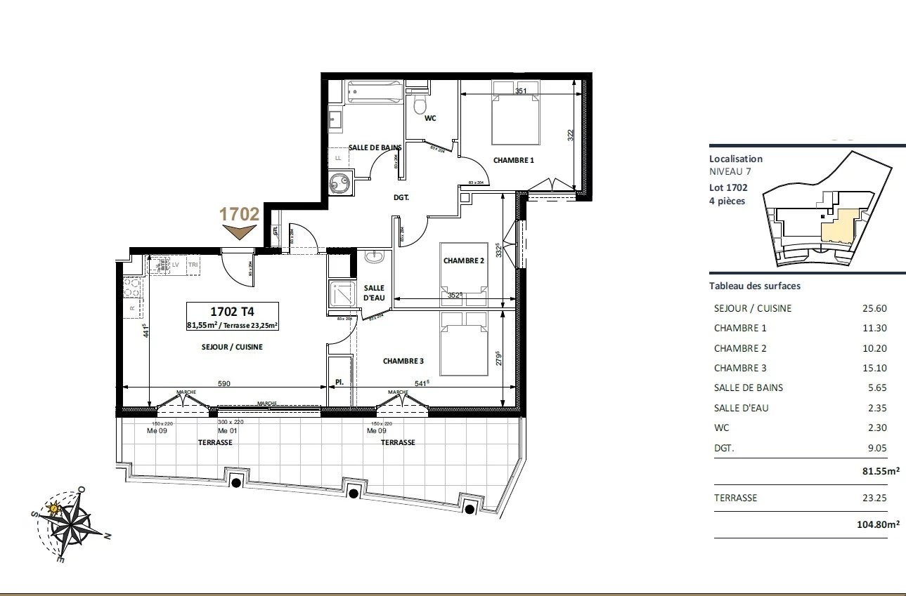
Beausoleil, Alpes-Maritimes Sea views and views over Monaco for this 3 bedroom 2 bathroom top floor apartment in new elegant development, minutes to Monaco and turned towards the sea. Air-conditioning, parking, bike storage, deep terraces. Provisional delivery in Q1 2028. Low French stamp duty. 40 mins to Nice International airport by car and the Italian border within 20 minutes. Ideally located just steps from the city center of Beausoleil and close to the Italian border, the residence benefi...
Ref #1028418
This property is located in Beausoleil, Provence-Alpes-Cote d'Azur, one of the most desirable neighbourhoods in the area.