
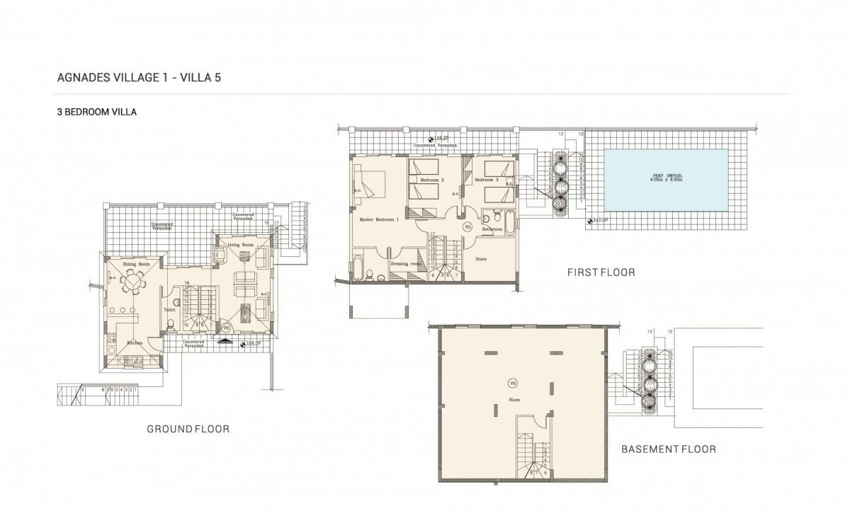
Three Bedroom Villa in Polis of Paphos Price + VAT Construction Stage Off-plan Delivery date 18 Months from signing of contract Beautiful costal three bedroom villa in the famous summer destination of Polis in Cyprus. The villa is adjacent to the spectacular Akamas National Park and close to the renowned Blue Lagoon Beach. This exclusive residence enjoys spectacular sea and mountain views and is surrounded by beautiful green landscapes. The villa consists of a basement, ground floor and first...
Ref #795992
This property is located in Polis Chrysochous, Polis, one of the most desirable neighbourhoods in the area.